淡路島よりaiを込めて♪~よしこの気まぐれブログ☆野島江崎☆オーシャンビュー・車付け◎シンプルな二階建て~
2026.01.10
皆様 いつも弊社HPをご覧いただきありがとうございます。
お正月から気まぐれブログ、第三弾め。かなり飛ばしております。
淡路オフィスの気まぐれ担当・堀田です😊
さて皆さま
札幌のほうで雪が降ったとか、聞いただけで身も凍るような話もありますが
淡路島の寒さは北の方ほど尖ってもいなく、毎年「ふつうくらい、寒い」のレベルです。
いかがお過ごしでしょうか。(はっ、この感覚…デジャブ?)
この時期になると「おせちに飽きたら」とテレビやネットでよくわからないアレンジ料理が紹介されていますね🙄
我が家のおせち料理で必ず最後まで残ってしまうのが
片口イワシの稚魚を乾燥させた「ごまめ」を使い、砂糖やみりん、醤油で甘辛く味付けした田作りです。
砂糖を使う量が狂気じみているので、お重の中央に陣取ったまま、生まれた姿をほぼ崩さず松の内を過ごす我が家の田作りは
レジン細工のような光沢があって、「食わさせない」という強い意志さえ感じます。正月早々、祝箸が折れたら縁起悪いので、静観しています。
堀田家に伝わる嫌がらせ料理の一つです。(他にもある)
最初の段階で、なにか大事なことを間違って出来上がった料理は、アレンジする術がないので
「おせちを間違えたら」という表題で料理動画あげてくださる猛者がいるとありがたいです😂
さて本題に戻りまして
年明けからずっと岩屋の物件ばかりを載せていましたが本日は野島江崎、湧きに湧きまくっている淡路市の超ホットなエリアにある超シンプルな戸建をご紹介します!
野島江崎の海岸沿いにはコンセプトも様々にカラフルなお店が のきを連ねており
休日などガードマンさんが誘導されている姿を度々見かけますが👀
横道に入って高台の方へ上がると閑静な別荘街があって建物は密集しておらず点、点…と、いい感じの距離感で建っています。
海岸沿いと別荘街、静けさの対比がはっきりしていて、同じエリアで静と動がこれだけくっきりしているのも野島江崎ならでは!😄
それではお預かりして間もない水面下物件😳外観です😄

淡路インターチェンジから5.9km(車で8分)とアクセス◎、
周辺にはリゾートホテルや貸別荘なども含めて大小の建物がまばらにありますが
密集しておらず圧迫感は感じません😃
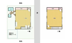
間取りは超シンプルな2部屋+簡易キッチン♪

シンプルゆえに、リフォームする際に自由に間取りを区切られます♪

一階には簡易的なキッチンと浴室、トイレなどの水回りがあります♪

窓からは目線の先に海が見えます♪
次は二階です↓

各階どちらも奥には収納が設けられていて大容量です♪


二階の窓からは海が見下ろせます😄

間口も広くて車付けも〇!
玄関横に駐車するには入口の段差を解消する必要がありますが、価値のある造作だと思います😄
いかがでしたでしょうか?
今回は水面下の物件紹介ということもあって地図も載せず、室内もほんの少しだけの掲載でしたが、
気になる販売価格は…控えめに言って超掘り出し物件!と思われるかも😄
詳しくはお問い合わせください♪
えッ!と気持ちのベクトルが動いたら、直感に従ってみると新しい景色が開けるかも😄
野島江崎の賑わいどころの高台、シンプルな戸建。あなたのアイデアと夢を待機中です!
それでは今日はこの辺で。
最後までお読みいただきありがとうございます😊